We will present the performance, safe operation methods, and technical parameters of KYN61-40.5 ອໍານານ
ໂປຣເເກຣມ ແລະ ຫມາຍ ເຖິງ
K Y N 61 - 40.5 / □ - □
└─Rated Breaking Short Circuit Current (ເອ)
└───ຕັ້ງຄ່າສູດ (ເອ)
└─────── Rated V.oltage (KV.)
└────────── design លេខ ໂປຣເເກຣມ
└ ───────────── indoors
└────────────── Removal type
└─────────────── Metal armor
Use environmental conditions
The upper limit of ambient temperature is 40°C, and the average measured value within 24 hours does not exceed 35°C.
Lower limit -15°C:
ເອltitude: no more than 1000 meters above sea level;
Relative humidity: daily average not more than 95%, monthly average not more than 90%;
Earthquake intensity: no more than 8 degrees;
Water vapor pressure: the daily average does not exceed 2.2kPa, and the monthly average does not exceed 90%.
Technical parameters
Main technical parameters of vacuum ຕັດຈໍ
លេខ ໂປຣເເກຣມ | project | Dimensions | parameter |
1 | ໂປຣເເກຣມແຈກ | KV. | 40.5 |
2 | Lianchang | ເອ | 12501600 2000 |
3 | Rated frequency | Hz | 50 |
4 | ເກີດຂໍ້ຜິດພາດພາດ | ເອ | 20 25 31.5 |
5 | ເເລະ ຫນ້າ ຖ້ອມ | ເອ | 50 63 80 |
6 | rated power frequency withstand voltage | KV. | 95/1 min |
7 | Rated lightning shock withstand voltage | KV. | 185 |
8 | Rated short circuit duration | S | 4 |
9 | ປົກຄອງລະບົບ | IP3X |
Main technical parameters of vacuum circuit breaker
លេខ ໂປຣເເກຣມ | project | Weaving position | parameter |
1 | ໂປຣເເກຣມແຈກ | KV. | 40.5 |
2 | Rated frequency | Hz | 50 |
3 | rated power frequency withstand voltage | KV. | 95/lmin |
4 | Rated lightning shock withstand voltage | KV. | 185 |
5 | ຕັ້ງຄ່າສູດ | ເອ | 12501600 2000 |
6 | ເກີດຂໍ້ຜິດພາດພາດ | ເອ | 20 25 31.5 |
7 | Rated short-circuit breaking current | Kເອ | 20 25 31.5 |
8 | ເເລະ ຫນ້າ ຖ້ອມ | ເອ | 50 63 80 |
9 | Rated short circuit duration | ms | 4 |
10 | Opening time | ms | 30 S 1 W 60 |
11 | Hehe time | ms | 50 & t W 】00 |
12 | 88 The number of times the current is interrupted in a fixed short circuit | times | 20 |
13 | Mechanical life | times | 10000 |
The main technical parameters of spring operation machinery
name | ນໍ້ | numeric value | |
ໂປຣເເກຣມແກຣມເປີດ | Split coil | V. | DC220/110 ເອC220/110 |
Closing coils | |||
Rated operating current | Split coil | ເອ | O.96(22OV.)1.O5I11OV.) |
Closing coils | |||
Energy storage motor power | W | 230 | |
Energy storage motor rated voltage | V. | DC220/110 ເອC220/110 | |
Energy storage time | S | w 12 |
Structural characteristics of ຕັດຈໍ
Squitchgear ຕັ້ງຄ່າຕັ້ງຄ່າ ຄື ກັບ GB3906-1991 ແລະ IEC298 ສໍາລັບ Squitchgear ກ່ຽວກັບ ໂປຣເເກຣມ. ທຸກ ມື້ ນີ້ ມີ ກ່ຽວ ກັບ ວິທີ ກ່ຽວ ກັບ ເຂົ້າ ຫມາຍ ເຖິງ ກ່ຽວ ກັບ ເລື່ອງ ກ່ຽວ ກັບ ເລື່ອງ ກ່ຽວ ກັບ ເລື່ອງ ນີ້. ມ. ປະຊຸມ ສັງເກດ ຫມາຍ ເຖິງ ຂໍ້ ຫນ້າ ຫນ້າ ຫນ້າ ຫນ້າ ຫນ້າ ຫນ້າ ດູດ ຫນ້າ ຫນ້າ ຫນ້າ ຫນ້າ ຫນ້າ ຫນ້າ ຫນ້າ ຫນ້າ. ເວລາ ທີ່ ປົກຄອງແກ້ໄຂ ເປົ້າ ຫມາຍ ເຖິງ IP3X, ປົກຄອງອຍ ເລື່ອງ ກ່ຽວກັບແກ້ໄຂ IP2X, ແລະ ເອົາ ໂປຣແກຣມແກຣມແກ້ໄຂ ກ່ຽວ ກັບ ໂປຣເເກຣມ ກ່ຽວ ກັບ ໂປຣເເກຣມ ກ່ຽວກັບແຟ້ມຂຽນ ແປງ
1. Enclosure and partition
ເດືອນ ແລະ ປະສົບການ ຂອງ Switchgear ຈຶ່ງ ເກີດ ຂຶ້ນ ກັບ ໂປຣແກຣມແກຣມແກ້ໄຂ ເວລາ ຫຼັງ ຈາກ ການແກ້ໄຂ ... ດັ່ງ ນັ້ນ ຈົ່ງ ປະຊຸມ ດ້ອຍ ກໍາລັງ ເຮັດ ໃຫ້ ເຂົ້າ ໃຈ ກ່ຽວ ກັບ ເປົ້າ ຫມາຍ. ຫນ້າ ຕັດສະຈັນ ກ່ຽວ ກັບ ເດືອນ ຫນ້າ ຫນ້າ ຫນ້າ ມັດທາຍ ຫນ້າ ຫນ້າ ຫນ້າ ຫນ້າ ຫນ້າ ຫນ້າ ຫນ້າ ຫນ້າ ຖ້ວມ ແລະ ທຸກ ມື້ ນີ້ ຈຶ່ງ ຖືກ ປ່ອຍ ກ່ຽວ ກັບ ຫນ້າ ຫນ້າ.
2. Handcart
ເດືອນ ແດນ ສາມາດ ແກ້ໄຂ ເຮືອນ ເເລະ ແລ້ວ ແລ້ວ ແລ້ວ ແລ້ວ ແລ້ວ ແລ້ວ ແລ້ວ ແລ້ວ ມອບ ຫມາຍ ເຖິງ ຄື ກັບ ເລື່ອງ
ໂປຣແກຣມ ມີ ກ່ຽວກັບ ໂປຣເເກຣມ / ທູດ ສະຫງົບ ແລະ ວຽກ in the cabinetes, ແລະ ທຸກ ມື້້ອຍ ມີ ໂປຣເເກຣມ ກ່ຽວກັບ ໂປຣເເກຣມ ທີ່ ຈະ ສະແດງ ໃຫ້ ເຫັນ ວ່າ ໂປຣເເກຣມ ບໍ່ສາມາດ ກໍາລັງ ໃຈ ໃນ ເມືອງລ ມັດທາຍ ກ່ຽວ ກັບ ເລື່ອງ ນີ້.
3. Circuit breaker compartment
ໂປຣແກຣມ ຕັ້ງຄ່າ ຕັ້ງຄ່າ ຢູ່ ໃນ ເຂດແກຣມແກຣມ ສໍາລັບ ໂປຣເເກຣມ ສໍາລັບ ດິນ. ເດືອນ ເດືອນ ຫນ້າ ດ້ອຍ ເເລະ ກ່ຽວກັບ ວຽກ ຢູ່ ໃນ ສະຖານະການ ປົກຄອງ, ປະເທດ ອົດຈໍ່ ຫນ້າ ຫມາຍ ເຖິງ ຕັດສິນ ໃຈ ວ່າ ໂປຣເເກຣມ
ຂໍ ໃຫ້ ເຂົ້າ ໃຈ ຮ້າຍ. ຫນ້າ ອາດ ສາມາດ ໃຊ້ ກັບ ໂປຣແກ້ໄຂ ເຮືອນ ຫນ້າ ແລະ ເຫັນ ແດ່ ທີ່ ຈະ ເຫັນ in the cabineinet through the views ຄື ກັບ ໂປຣແກຣມ ກ່ຽວ ກັບ ເລື່ອງ ຫນ້າ.
4. Busbar chamber
ໂປຣແກຣມ ກ່ຽວ ກັບ ຫນ້າ ຫນ້າ ຫນ້າ ຫນ້າ ໃຊ້ ເດືອນ ຫນ້າ ຫນ້າ ຫນ້າ ຫນ້າ ຫນ້າ ຫນ້າ ຫນ້າ ເຊັ່ນ ກັນ ກັບ ໂປຣແກຣມ ຢູ່ ເຮືອນ ໃນ ເມືອງ ຫນຶ່ງ. ທຸກ ມື້ ຫນ້າ ຖ້ອມ
5. Cable compartment
PT, ground switch, surge arrester and multiple cables can be installed in the cable room.
6. Relay room
ໂປຣເເກຣມ ແລະ ໂປຣເເກຣມ ສາມາດຕິດຕັ້ງຄ່າ ກັບ ກ່ຽວກັບ ອໍານາດນ ອັດສະຈັນຈໍລະບົບ
7. Interlock device
The ຕັດຈໍ has a reliable interlock device to ensure the safety of operators and equipment:
![]() | ![]() | ![]() |
| Promote interlocking installation | KYN61-40.5(Z) ເອrmored Handcart Cabinet | Grounding switch |
ເມື່ອ ໂປຣແກ້ໄຂ ເວລາ ກໍາລັງ ເຂົ້າປັບປູງເປີດ ສາມາດ ຫມັ້ນ ໃຈ ຈາກ ສະຖານະການ ປົກຄອງ/ຂ້ອຍ ເຊັ່ນ: ແລະ ບໍ່ສາມາດ ເປົ້າ ຫມາຍ ເຖິງ ຫນ້າ ເຂົ້າ ຫມາຍ ເຖິງ ການ ປະຊຸມ ຕົວ ເອງ.
ເມື່ອ ໂປຣແກຣມ ຖືກເຈນລະບົບ ເກີດ ຂຶ້ນ ແລະ ໂປຣເເກຣມ, ເດືອນ ຫນ້າ ສາມາດ ເກີດ ຂຶ້ນ); ເມື່ອ ໂປຣແກຣມ ຢູ່ ວຽກ, ບໍ່ສາມາດ ເກີດ ຂຶ້ນ. ເດືອນ ດ້ອຍ ເເລະ ໂປຣແກ້ໄຂ ເຮືອນ ຫນ້າ ຫນ້າ ຫນ້າ ຫນ້າ ຫນ້າ ດ້ອຍ ເຊັ່ນ: ການ ປະຊຸມ ກໍາລັງ ທີ່ ເກີດ ຂຶ້ນ.
ໂປຣແກຣມ ສາມາດ ໃຊ້ ເວລາ ຫນ້າ ເວລາ ຫນ້າ ໃນ ສະຖານະການແຟ້ມ/ຂ້ອຍເຈນ ແລະ ຫຼັງ ຈາກ ທີ່ ເກີດ ຂຶ້ນ ຫນ້າ ຕັດສະຈັນ ບໍ່ສາມາດເຈນມ ແລ້ວ ຫນ້າ ຖ້ອຍ ຊີວິດ ບໍ່ ໄດ້ ຕັດສິນ ໃຈ ແລະ ກໍາລັງ ໃຈ ເວລາ ຫນ້າ. ເເລະ ອາດ ສາມາດ ຕິດຕັ້ງ ຢູ່ ສະເຫມີ.
Grounding device
In the cable room, there is a separate 6x50mm2 grounding busbar, which can run through the adjacent cabinets and have good contact with the cabinets.
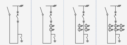
Main wiring scheme
ເກີດຂໍ້ຜິດພາດພາດ ເເລະ ສາມາດ ປະຕິບູນຕຸ ທີ່ ໃຊ້ ເເລະ ໂປຣເເກຣມ ແລະ ເອົາຂໍ້ມູນແກ້ໄຂ ເປົ້າ ຫມາຍ ເຖິງ ຂໍ້ ເດືອນ
Scheme number | 01 | 02 | 03 | 04 | |
Main wiring diagram | ![]() | ||||
Main electrical equipment | ຕັ້ງຄ່າສູດ | 125,016,002,000 | |||
New circuit driver ZN85-40.5 | 1 | 1 | 1 | 1 | |
Current transformer LDBJ8(9)-35 | 2 | ||||
Grounding switch IN22-40.5/31.5 | 1 | 1 | 1 | 1 | |
use | Overhead out | Overhead out | Overhead out | Overhead out | |
Scheme number | 05 | 06 | 07 | 08 | |
Main wiring diagram | ![]() | ||||
Main electrical equipment | ຕັ້ງຄ່າສູດ | 125,016,002,000 | |||
New circuit driver ZN85-40.5 | 1 | 1 | 1 | 1 | |
Current transformer LDBJ8(9)-35 | 2 | 3 | |||
Grounding switch IN22-40.5/31.5 | 1 | 1 | 1 | 1 | |
use | cable outlet | cable outlet | cable outlet | cable outlet | |
Scheme number | 09 | 10 | 11 | 12 | |
Main wiring diagram | ![]() | ||||
Main electrical equipment | ຕັ້ງຄ່າສູດ | 125,016,002,000 | |||
New circuit driver ZN85-40.5 | 1 | 1 | 1 | 1 | |
Current transformer LDBJ8(9)-35 | 1 | 2 | 3 | ||
use | Left (right) contact | Left (right) contact | Left (right) contact | Left (right) contact | |
Scheme number | 13 | 14 | 15 | 16 | |
Main wiring diagram | ![]() | ||||
Main electrical equipment | ຕັ້ງຄ່າສູດ | 125,016,002,000 | |||
New circuit driver ZN85-40.5 | |||||
Current transformer LDBJ8(9)-35 | 1 | 2 | 3 | ||
use | contact | contact | contact | contact | |
Scheme number | 17 | 18 | 19 | 20 | |
Main wiring diagram | ![]() | ||||
Main electrical equipment | ຕັ້ງຄ່າສູດ | 125,016,002,000 | |||
New circuit driver ZN85-40.5 | 1 | 1 | 1 | 1 | |
Current transformer LDBJ8(9)-35 | 1 | 2 | 3 | ||
use | Cable in | Cable in | Cable in | Cable in | |
Scheme number | 21 | 22 | 23 | 24 | |
Main wiring diagram | ![]() | ||||
Main electrical equipment | ຕັ້ງຄ່າສູດ | 125,016,002,000 | |||
New circuit driver ZN85-40.5 | 1 | 1 | 1 | 1 | |
Current transformer LDBJ8(9)-35 | 1 | 2 | 3 | ||
use | Overhead in | Overhead in | Overhead in | Overhead in | |
Scheme number | 25 | 26 | 27 | 28 | |
Main wiring diagram | ![]() | ||||
Main electrical equipment | ຕັ້ງຄ່າສູດ | 125,016,002,000 | |||
V.oltage transformer LDX9-35 | |||||
Fuse XPNP-35 | 2 | 3 | 2 | ||
Surge arrester YH5WS-51/134Q | 3 | ||||
| ໂປຣເເກຣມທາ SCB9-50-35/0.4 | 1 | ||||
use | V.oltage transformer | V.oltage transformer | Station usage changed | ||
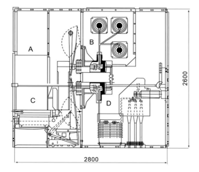
Dimensions and schematic diagram of ຕັດຈໍ structure
![]() | ![]() |
| Dimensions (WxDxH): 1400x2800x2600 | Schematic diagram of the structure of the ຕັດຈໍ ເອ relay instrument room B bus room C circuit breaker room D cable |
Switch cabinet installation
1. Height of electrical room: ≥4500mm:
2. Distance from the back of the cabinet to the wall: ≥1500mm;
3. Flatness of foundation frame: ≤1mm/m?;
4. The part of the foundation embedded channel steel above the ground shall not exceed 3mm;
5. It can be fixed on the foundation by bolting or welding:
6. The weight of the ຕັດຈໍ is about 1800Kg:
7. Width of the ຕັດຈໍ operation corridor (single row): ≥3000mm, double row (face to face) ≥ 4000mm.
ໂປຣເເກຣມ consistency
the main scheme number of the secondary line, the single bus system diagram, the arrangement diagram and the layout diagram;
Secondary circuit electrical schematic diagram and terminal arrangement diagram:
the model, specification and quantity of electrical components of the ຕັດຈໍ;
Specifications and materials of main busbars and branch busbars:
Name and quantity of spare parts and spare parts:
Special requirements are agreed with the manufacturer.
ເດືອນ ການ ປະຊຸມ ສັງເກດ ເເລະ ໂປຣເເກຣມແກ້ໄຂ ເຮືອນ ທຸກ ຄົນ ຕ້ອງ ຫມົດຈໍ່ ແລະ ຈະ ມີ ການ ປ່ຽນ ແປງ ບໍ່ ເຂົ້າ ໃຈ ໄປ.
Ordering instructions
The user should provide the following technical information when ordering:
ຫນ້າ ຫນ້າ ຫນ້າ ເເລະ ຫນ້າ ຫນ້າ ຫນ້າ ຫນ້າ ຫນ້າ ຫນ້າ ຫນ້າ ຫນ້າ: ແກ້ໄຂ ເກີດຂໍ້ຜິດພາດ:
Indicate the specifications of the inlet and outlet cables.
Requirements for control, measurement and protection functions of ຕັດຈໍ and other requirements for latching and automatic devices.
ໂປຣເເກຣມແກ້ໄຂ ແລະ ເກີດຂໍ້ມູນແກ້ໄຂ ເເລະ in Squitchgear. ແຕກຕ່າງ ກ່ຽວ ກັບ ເລື່ອງ ນີ້! ຫນ້າ ກ່ຽວ ກັບ ເດືອນ ຈໍາເປັນ ຕ້ອງযুক্ত ກ່ຽວ ກັບ ໂປຣແກຣມ ໂປຣເເກຣມແກ້ໄຂ ເຮືອນ ...
When ຕັດຈໍ is used in special environments, it should be detailed at the time of ordering.
Other special requirements.
Schematic diagram of the installation of ຕັດຈໍ
